Tandon Real Estate (TRE) proudly presents 5 Impression ave, Tarneit.
Located in the highly sought-after Reflections Estate in Tarneit, this stylish and well-appointed residence presents an outstanding opportunity for families, first-home buyers, and investors alike.
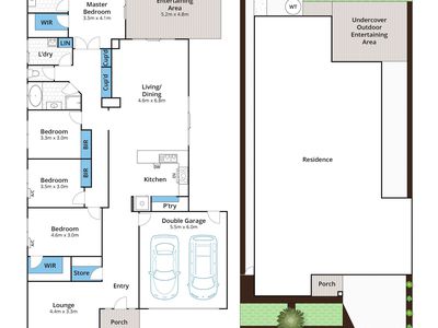
Designed for easy modern living, the home offers four generous bedrooms and a practical floorplan that maximises both space and comfort. At the heart of the home is a light-filled open-plan living and dining area, complemented by a sleek galley-style kitchen featuring stone bench tops, quality appliances, ample cabinetry, and plenty of preparation space - perfect for everyday cooking and entertaining.
The spacious master bedroom serves as a private retreat, complete with extensive robe space and a beautifully appointed ensuite and adjoining outdoor room.
The remaining bedrooms are well-sized and share a central bathroom, ideal for growing families or guests.
Step outside to an outdoor living place with decking and a low-maintenance backyard that provides a relaxed setting for outdoor enjoyment without the upkeep.
Positioned only moments from Tarneit railway station and Tarneit Central Shopping Centre, along with schools, childcare facilities, and local parklands, this home offers the perfect blend of lifestyle, location, and value.
A smart move in a thriving and family-friendly neighbourhood.
Other Features below
Ducted heating and evaporative cooling throughput the house.
Security Roller shutters throughout for privacy, security and peace of mind.
Split system Aircon in 2 bed rooms
Freshly painted house and featuring brand new hybrid flooring.
A double remote-controlled garage with epoxy in garage adds further convenience and secure parking.
Link for Video!
https://www.instagram.com/tandonrealestate/reel/DVbLQqECU7l/
https://www.youtube.com/watch?v=21UCHes0sRI
Ring Prashant Tandon on 0434 435 559 to secure this beautiful home.




























